
From Cluttered to Calm: A Thoughtful Home Remodel in Kohler, Wisconsin
On a quiet street in Kohler, Wisconsin, a place long considered the hub of kitchen and bath design, a dated first floor was transformed into a warm, refined haven lovingly dubbed Rupert’s Retreat
Our clients, a retired couple, had lived in the home for years. As former educators, their lives had been built around structure, schedules, and thoughtful details. But their space wasn’t reflecting that. It felt dark, cluttered, and closed-off. And for a home with so much charm and potential, it just wasn’t working anymore.
Their goal? To create a space they genuinely loved coming home to. One that felt fresh and bright, maintained the original character of their Kohler home, and made daily routines feel less chaotic. And we knew one member of the family in particular would be keeping us on our toes: Rupert, their energetic black lab, who proudly runs the household.

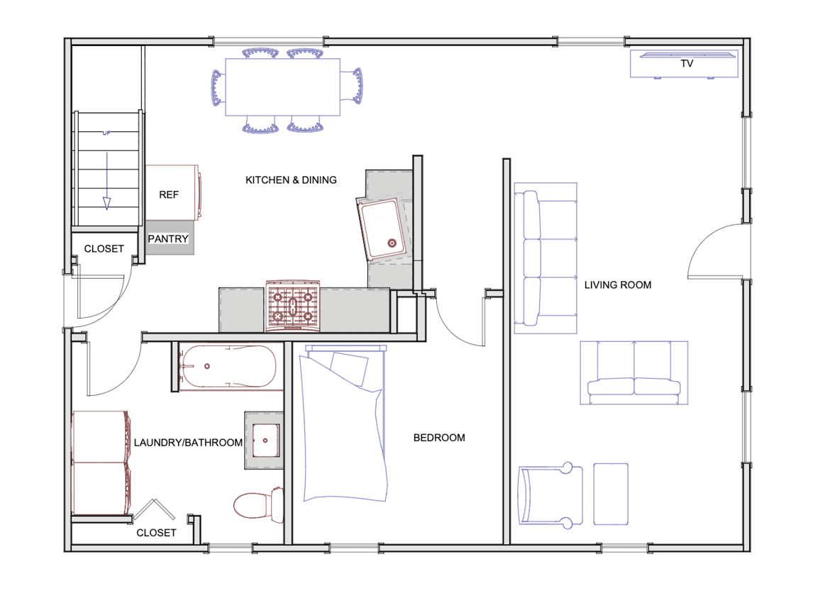
BEFORE

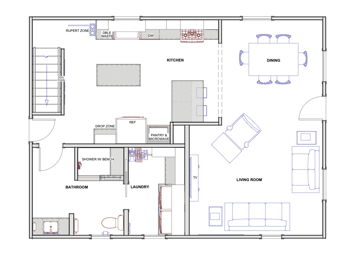
AFTER
Designing for Daily Life
One of the biggest pain points in the original layout was the kitchen. It was dark, cramped, and cut off from the rest of the home by a large wall. We removed that wall to open up the space and added a custom-sized island along with a peninsula, giving the clients the prep space they needed without compromising flow. We also reimagined the dining zone. What was once a table area is now home to sleek custom cabinetry, a deep apron front sink, and a new stove, all designed around a reconfigured window that still looks original from the outside.
But the transformation didn’t stop there. The bathroom was another major source of frustration. Originally, you walked directly into a washer and dryer the moment you opened the bathroom door. To solve this, we reconfigured a small bedroom and connected it to the back of the bathroom to create a spacious new laundry area. The result is a more intuitive, more private flow with a setup that just makes sense.
We also carved out smart, subtle storage solutions throughout the home: a drop zone near the back door for mail, calendars, and keys; a coat nook under the stairs; and dedicated built-ins for everything from baking tools to a step stool. Even Rupert got his own custom cabinetry, cleverly tucked along the stair wall to store his food.
BEFORE

AFTER

Materiality & Mood: Kohler Home Remodel
The materials throughout Rupert’s Retreat are timeless and grounded, with a soft palette of neutrals, blues, and greens layered thoughtfully from room to room. Warm oak vinyl flooring runs throughout the main living areas, creating cohesion and inviting texture underfoot. In the kitchen, a subtle mix of stone surfaces adds depth and contrast, offering just enough variation to feel elevated without being overpowering.
A textured glass mosaic backsplash, one of our clients’ favorite selections, adds character and a modern touch. It complements the cabinetry and softens the overall palette of this Kohler home remodel. In the bath and laundry, matte finishes and calming tones bring a sense of calm to these hardworking spaces. Thoughtful touches, like a built-in shower bench and a discreet step stool nook, support aging in place while keeping the design clean and considered.


Custom Cabinetry for Endless Storage
For this Kohler home remodel, functionality was just as important as aesthetics. Custom cabinetry and strategic storage solutions helped maximize every inch. In the laundry room, we added upper and lower cabinets to house cleaning supplies and created built-in nooks beneath the washer and dryer for laundry baskets, keeping the space organized and efficient.
In the kitchen, a built-in setup next to the refrigerator features pull-out shelves for baking essentials like oils, broths, and mixes, while deep drawers below keep items like napkins, buns, and snacks within easy reach. The microwave has its own designated spot, tucked neatly between pantry and prep areas to free up counter space and maintain a clean, streamlined look.
Even Rupert got a custom setup with a dedicated nook beneath the stairs for storing dog food and treats. It’s a smart use of space that keeps every member of the household in mind.


Laundry & Bathroom Remodel
The bathroom and laundry areas saw some of the most dramatic changes in both form and function. The original layout was cluttered and awkward, with mismatched finishes and a washer that overwhelmed the bathroom. We introduced a more thoughtful design with calming finishes and practical upgrades. A walk-in shower with modern tilework now anchors the bathroom, offering both comfort and style. A custom vanity adds elegance and storage, framed by soft lighting and a subtle arch that nods to classic design.
For the laundry area, we repurposed an underused bedroom to create a dedicated space that is intentional, clean, and bright. This new layout not only improved privacy and flow but also gave the clients a laundry room that finally works for their daily routine. Consistent materials and considered details make these hardworking spaces feel fully integrated with the rest of the home.



“It feels cheerful without being trendy, functional without being sterile.”

A Forever Home, Finally
What began as a dated, compartmentalized space is now open, bright, and tailored to the couple’s lifestyle. This Kohler home remodel feels cheerful without being trendy, functional without being sterile. It’s the kind of home that supports quiet mornings, shared dinners, and occasional bursts of energy from Rupert.
This was a remodel about intention. About honoring the charm of a Kohler home while creating more ease in everyday life. We’re grateful to have been part of this transformation, and even more grateful to know Rupert approves.
Ready to Start Your Own Remodel?
Whether you’re updating a single room or reimagining your entire home, Distinctive Design Studio offers a full-service experience rooted in creativity, collaboration, and craftsmanship. As a design/build firm, we bring together architecture, interior design, and remodeling under one roof to simplify the process and deliver thoughtful, lasting results.
From layout planning to the final finish, our team is here to guide you every step of the way. If you’re ready to create a space that truly reflects your lifestyle, we’d love to hear your story. In the meantime, explore our blog for more design insights, renovation tips, and project inspiration to help you take the next step with confidence.




